Description
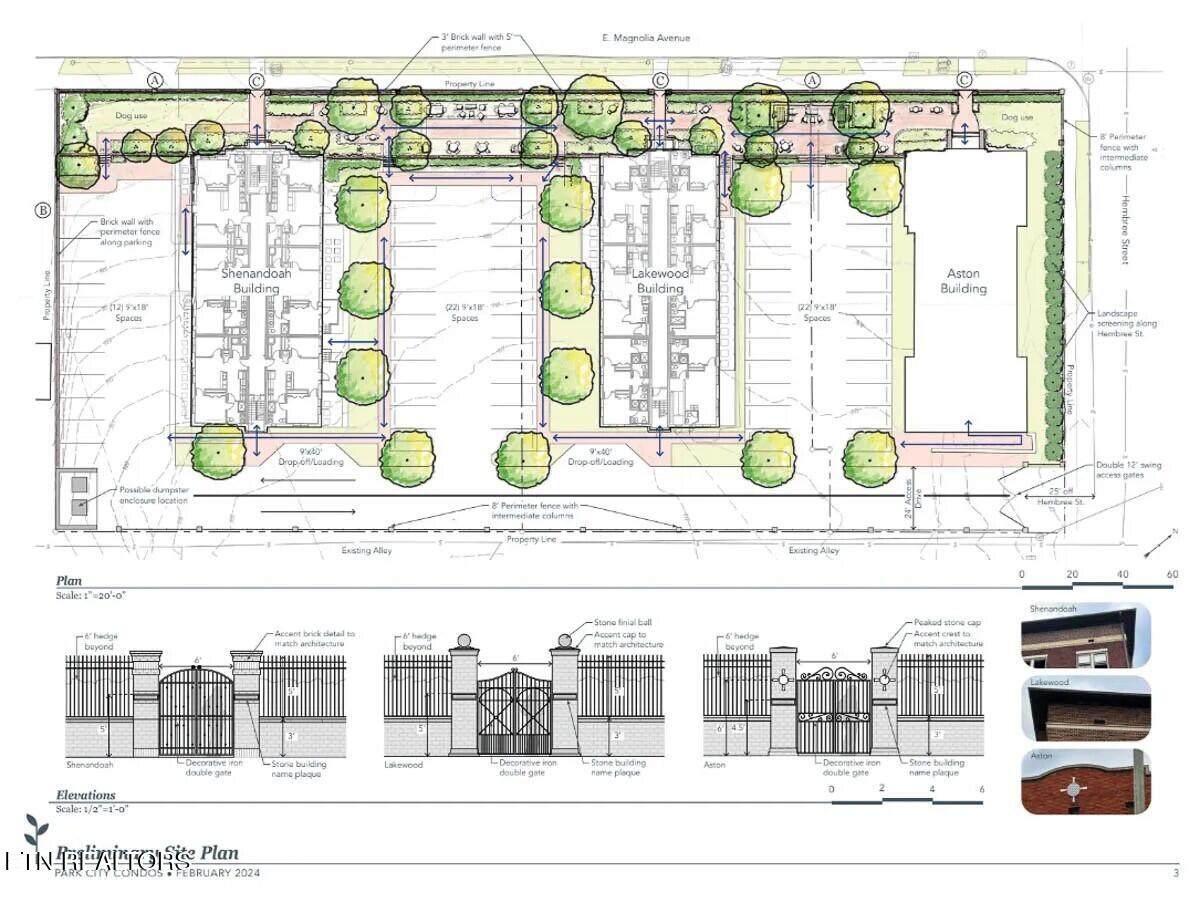
Park City Village - Historic Charm, Modern Living PRE SALE Welcome to Park City Village, a beautifully reimagined condo development located just a short drive from downtown Knoxville. Set in a thoughtfully restored historic building, these condos blend vintage character with top-tier modern upgrades perfect for anyone looking to buy a piece of downtown. Park City Village Condo Approx. sizes per appraiser is an estimate only and is subject to change. Buyer to verify size, taxes (TBD) and HOA fees which are subject to change. *Because this is an active construction site, all tours must be scheduled in advance and all visitors must be escorted through the development by the developer's representative. Photos will be updated soon. This project will be completed in 3 phases, allowing for thoughtful execution and the opportunity to secure a unit early in this exciting new community. Call agent for info and showings. Historic Building, Fully Renovated A perfect fusion of classic architecture and modern comfort. Property Features: All-New LG Appliances (Value 10K) Each unit comes fully equipped with brand-new LG appliances, offering high performance and stylish design. Private Outdoor Spaces Enjoy the peaceful shared garden and patio ideal for relaxing, entertaining, or working outdoors. Deeded Parking (estimate value 25K) Each condo includes dedicated parking and access to EV charging stations(buyer to pay for installation) Gated, Secure Community Live with confidence in this fully gated community featuring keyless entry and a secure entrance. Versatile Layouts for Any Lifestyle Ideal for working from home, downsizing, investing, or as a second residence.
-
2BEDS
-
1.6ACRES
-
1BATHS
-
01/2 BATHS
-
743SQFT
-
$417$/SQFT
School Ratings & Info
Description
Park City Village - Historic Charm, Modern Living PRE SALE Welcome to Park City Village, a beautifully reimagined condo development located just a short drive from downtown Knoxville. Set in a thoughtfully restored historic building, these condos blend vintage character with top-tier modern upgrades perfect for anyone looking to buy a piece of downtown. Park City Village Condo Approx. sizes per appraiser is an estimate only and is subject to change. Buyer to verify size, taxes (TBD) and HOA fees which are subject to change. *Because this is an active construction site, all tours must be scheduled in advance and all visitors must be escorted through the development by the developer's representative. Photos will be updated soon. This project will be completed in 3 phases, allowing for thoughtful execution and the opportunity to secure a unit early in this exciting new community. Call agent for info and showings. Historic Building, Fully Renovated A perfect fusion of classic architecture and modern comfort. Property Features: All-New LG Appliances (Value 10K) Each unit comes fully equipped with brand-new LG appliances, offering high performance and stylish design. Private Outdoor Spaces Enjoy the peaceful shared garden and patio ideal for relaxing, entertaining, or working outdoors. Deeded Parking (estimate value 25K) Each condo includes dedicated parking and access to EV charging stations(buyer to pay for installation) Gated, Secure Community Live with confidence in this fully gated community featuring keyless entry and a secure entrance. Versatile Layouts for Any Lifestyle Ideal for working from home, downsizing, investing, or as a second residence.
© 2025 East Tennessee REALTORS®. All rights reserved. IDX information is provided exclusively for consumers' personal, non-commercial use and may not be used for any purpose other than to identify prospective properties consumers may be interested in purchasing. Some or all of the listings displayed may not belong to HPG Horner Property Group | Realty Executives. Information is deemed reliable but is not guaranteed accurate by the MLS or HPG Horner Property Group | Realty Executives. Data last updated: 2025-12-12T19:47:40.25.
